
US$5,500,000 USD
판매용 대지, 623 Lazy Point Road, East Hampton, 뉴욕 11930, 미국
- MLS 번호957508
- 최소 판매 가능 공간
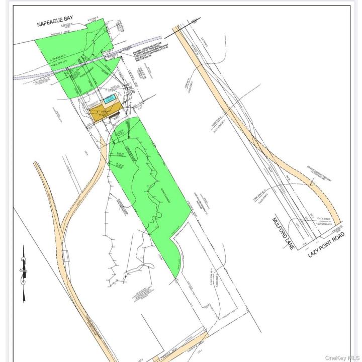
22,096 m² (237,838 ft²)
Engel & Volkers North Fork에서 추가했습니다
623 Lazy Point Road, East Hampton, 뉴욕 11930, 미국 내 판매용토지이(가) 현재 판매용입니다.623 Lazy Point Road, East Hampton, 뉴욕 11930, 미국이(가)US$5,500,000(으)로 추가되었습니다.
부동산 사양
속성
- 위치: 해변 접근 통로물가물 접근
대지/토지
- 땅/대지 크기:
22,096 m² (237,838 ft²) - 로트 설명: 수목 부지 평평함
수상 및 보트
- 물: 해변 정면
전망
- 특징: 물 전망
설명
Set on an extraordinary 5.46 acres of direct bayfront in the coveted Lazy Point enclave of Amagansett, 623 Lazy Point Road presents a truly rare opportunity to own a legacy waterfront holding in one of the Hamptons’ most private and naturally beautiful settings. With sweeping, unobstructed views across the bay and exceptional frontage, the property offers an unmatched sense of scale, serenity, and possibility. The expansive acreage allows for the creation of a substantial estate while still preserving open vistas, privacy, and the tranquil character that defines Lazy Point. Gentle coastal breezes, luminous sunsets, and ever changing water views form the daily backdrop, creating a setting that feels both timeless and secluded. This premier bayfront parcel is ideally positioned for a custom residence designed to maximize light, views, and indoor-outdoor living, with ample room for waterfront amenities and resort style grounds. Located moments from ocean beaches, Amagansett Village, and the best of East Hampton, yet removed from through traffic and crowds, Lazy Point remains one of the area’s most discreet and tightly held waterfront communities. Includes permitting approval.
An offering of this scale, frontage, and location is exceptionally rare—an opportunity to build a generational Hamptons estate on one of Amagansett’s most prized stretches of bayfront.
위치
623 Lazy Point Road, East Hampton, 뉴욕 11930, 미국